Обяви За нас Контакти
Продава 3-СТАЕН
град София, Люлин 2
213 850 €
418 254.25 лв.

(1 753 €, 3 428.57 лв./m2)
Цената е с включено ДДС
История на цената
Коригирана в 9:46 на 23 януари, 2026 год.
Обявата е посетена 263 пъти.
Площ:
122 m2
Етаж:
6-ти от 15
ТEЦ:
ДА
Строителство:
Тухла, Не е въведен в експлоатация

Описание на имота:


ДИРЕКТНО ОТ ИНВЕСТИТОР! Най-добра цена за района! Сграда Люлин КОМФОРТ ' вече е пред АКТ 14 и се придвижва към следващите фази на строителството с бързи темпове. Въвеждане в експлоатация-2027г.
Първата по рода си сграда в Люлин, с елегантна архитектура, спиращи дъха гледки, специално проектирана с акцент към комфорта и широките светли пространства в един уютен и модерен нов дом.
Сграда Комфорт е отличен избор за спокойна, семейна среда за динамично живеещия в столицата човек. Близостта до различни търговски центрове, магазини, училища и детски градини, както и отличните транспортни връзки, елиминират неудобствата на скоростния столичен живот.
- в близост до метростанция
- местоположение без аналог за кв. Люлин
- отлично проектирани апартаменти
- избор на тристайни и четиристайни жилища с южно изложение
- подземен паркинг на 3 нива

Сградата се състои от три входа, три подземни нива с гаражи и паркоместа, два магазина на партерен етаж. Апартаментите в сградата са просторни и светли, с правилни форми на помещенията, южно или източно изложение, прекрасни тераси.

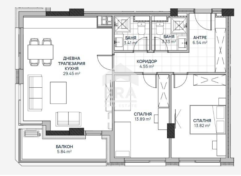
Обявеният за продажба тристаен апартамент (А-33) е с площ от 122 кв.м. и има следното разпределение: входно антре, всекидневна с кухненски бокс, балкон, две спални, две бани с тоалетни. Изложение: изток-запад.

ЕРА България е независим кредитен посредник към БНБ, с номер BCI000024 и предоставя безплатна консултация и съдействие при финансиране на избрания от Вас имот.

Оферта 3304643
Особености
Тухла
Асансьор
За контакт:
0877878879
Брокер:
Силвия Христова
0877 878 879
Офис: ЕРА Надежда
Още оферти от брокера: Продава | Дава под наем | Купува | Наема
Агенция:
ЕРА НАДЕЖДА
0877 878 879;0899 129 066
ЕРА НАДЕЖДА logo
Медал за прослужено време
В imot.bg от 2018 г.
eranadejda.imot.bg
Адрес:
област София, гр. София, ж.к Надежда 1, бл. 172, вх. Б, партер
http://era.bg/nadejda
ИЗПРАТИ ЗАПИТВАНЕ
ИЗПРАТИ ЗАПИТВАНЕТО

Продава 3-СТАЕН
град София, Люлин 2
Обява: 1c176304901033163

213 850 €
418 254.25 лв.
История на цената
(1 753 €, 3 428.57 лв./m2)

Цената е с включено ДДС
ЗАПАЗИ ОБЯВАТА

Местоположение: град София, Люлин 2

Допълнителни данни за имотите в района и сравнение с други райони

Покажи

Период

и 2 месеца

* Средните цени са определени чрез медианна стойност